Immobili Appartamento (San Cesario sul Panaro)
Descrizione
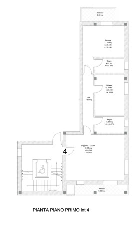
All’interno del nuovo ed elegante intervento residenziale “Alta Vista”, proponiamo in vendita trilocale al piano terra progettato per offrire comfort abitativo, efficienza energetica e spazi esterni vivibili. L’appartamento RIF.04 si sviluppa con ingresso su luminosa zona soggiorno con cucina a vista di circa 32 mq, ambiente ben distribuito e collegato con un balcone. La zona notte è separata da pratico disimpegno e comprende: • Camera matrimoniale di generosa metratura • Seconda camera ideale come stanza figli, studio o ospiti • Bagno finestrato principale • Secondo bagno/lavanderia di servizio finestrato Completa la proprietà un ulteriore balcone con accesso dalla camera matrimoniale. La distribuzione interna è studiata per garantire funzionalità, privacy tra zona giorno e notte e sfruttamento ottimale degli spazi. L’immobile è realizzato secondo standard costruttivi moderni e ad alta efficienza energetica: • Impianto full electric senza gas • Riscaldamento a pavimento con pompa di calore autonoma • Impianto fotovoltaico dedicato • Ventilazione Meccanica Controllata (VMC) con recupero di calore • Predisposizione climatizzazione estiva • Isolamento termico e acustico ad alte prestazioni • Serramenti ad alta efficienza con tapparelle elettriche • Videocitofono e impianto elettrico completo • Predisposizione ricarica auto elettrica in autorimessa Il fabbricato è progettato per garantire comfort abitativo, bassi consumi e qualità costruttiva superiore. Soluzione ideale per chi cerca un’abitazione moderna, elevata efficienza energetica e tecnologie costruttive di ultima generazione, in contesto residenziale elegante e di nuova realizzazione.
  • Riferimento:
    C122-04
  • Prezzo:
     € 294.535,00
  • Contratto:
    Vendita
  • Superficie:
    128 mq
  • Tipologia:
    appartamento
  • Numero vani:
    3
  • Comune:
    San Cesario sul Panaro
  • Anno:
    2027
  • Piano:
    1
  • Cantina:
    no
  • Garage:
    1
  • Riscaldamento:
    autonomo
  • Balcone:
    1
  • Terrazzo:
    0
  • Giardino: