Immobili Attico (San Cesario sul Panaro)
Descrizione
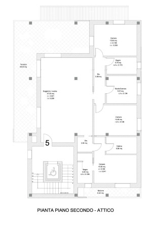
All’interno del nuovo ed elegante intervento residenziale “Alta Vista”, proponiamo in vendita un elegante ed esclusivo Attico al secondo piano progettato per offrire comfort abitativo ed efficienza energetica. Una soluzione abitativa unica che coniuga indipendenza, ampie metrature con una luminosità straordinaria grazie all'ottima esposizione. L’appartamento RIF.05 si apre su una spettacolare zona living open space di circa 48 m², concepita per ospitare una cucina a vista moderna e un ampio salone. Questo ambiente, cuore pulsante della casa, vanta molteplici accessi diretti all'area esterna garantendo una continuità naturale tra interni ed esterni. La zona notte offre massima privacy e comprende una camera padronale dotata di un'ampia cabina armadio, bagno en suite e accesso al balcone privato. Una seconda camera matrimoniale di circa 15 m². Una terza camera ideale come camera doppia o studio professionale e una quarta camera perfetta come cameretta o ufficio. L'immobile dispone di due bagni finestrati rifiniti per offrire il massimo comfort. Il valore aggiunto di questo immobile è lo splendido terrazzo di 48 m² che abbraccia la zona giorno ideale per cene all'aperto, zone relax con divani outdoor o giardino pensile privato. L’immobile è realizzato secondo standard costruttivi moderni e ad alta efficienza energetica: • Impianto full electric senza gas • Riscaldamento a pavimento con pompa di calore autonoma • Impianto fotovoltaico dedicato • Ventilazione Meccanica Controllata (VMC) con recupero di calore • Predisposizione climatizzazione estiva • Isolamento termico e acustico ad alte prestazioni • Serramenti ad alta efficienza con tapparelle elettriche • Videocitofono e impianto elettrico completo • Predisposizione ricarica auto elettrica in autorimessa Il fabbricato è progettato per garantire comfort abitativo, bassi consumi e qualità costruttiva superiore. Soluzione ideale per chi cerca un’abitazione moderna, elevata efficienza energetica e tecnologie costruttive di ultima generazione, in contesto residenziale elegante e di nuova realizzazione.
  • Riferimento:
    C122-05
  • Prezzo:
     € 450.610,00
  • Contratto:
    Vendita
  • Superficie:
    188 mq
  • Tipologia:
    attico
  • Numero vani:
    6
  • Comune:
    San Cesario sul Panaro
  • Anno:
    2027
  • Piano:
    2
  • Cantina:
    no
  • Garage:
    1
  • Riscaldamento:
    autonomo
  • Balcone:
    1
  • Terrazzo:
    1
  • Giardino: