Immobili Villa (Castelfranco Emilia)
Descrizione
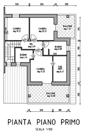
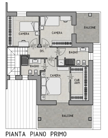
In un contesto residenziale tranquillo e moderno, proponiamo una splendida bifamiliare di nuova costruzione, progettata con particolare attenzione a comfort, efficienza energetica e qualità costruttiva. La villa si sviluppa su due livelli con ampi spazi interni ed esterni, tecnologie evolute e un design che valorizza la luce naturale e la vivibilità quotidiana. Distribuzione interna Piano Terra L’ingresso conduce in un’ampia e luminosa zona soggiorno–pranzo, caratterizzata da una grande finestra che si affaccia direttamente sul giardino, dove è possibile realizzare un pergolato esterno perfettamente integrato con la zona living, ideale per pranzi all’aperto, relax e continuità tra interno ed esterno. La cucina abitabile offre uno spazio pratico e funzionale, separato e ben configurato. Un disimpegno con ripostiglio collega il soggiorno al bagno del piano e conduce direttamente al garage, garantendo massima comodità nei rientri e nelle giornate di maltempo. Piano Primo La zona notte è introdotta da un comodo disimpegno. La camera padronale è concepita come una vera suite privata: dispone di cabina armadio, bagno esclusivo e di un balcone coperto di ampia metratura, perfetto per creare un angolo relax personale. Completano il piano altre due camere da letto, una delle quali dotata di balcone privato, e un ulteriore bagno finestrato a servizio del piano. Tecnologie e dotazioni tecniche di alto livello Questa abitazione è stata progettata secondo criteri avanzati di costruzione e risparmio energetico, puntando alla Classe Energetica A4, la più elevata attualmente prevista. Impianto di riscaldamento e climatizzazione • Sistema con pompa di calore aria/acqua completamente elettrica, senza gas metano e senza canna fumaria. • Riscaldamento a pavimento radiante in tutta la villa, per un comfort termico costante e omogeneo. • Termoarredi nei bagni. • Regolazione climatica intelligente, con pannello di controllo generale e termostati in ogni stanza (esclusi i bagni). • Predisposizione per raffrescamento tramite 3 split (zona giorno + due camere). Impianto fotovoltaico • Ogni villetta è dotata di impianto fotovoltaico autonomo da 4 kW, conforme al DAL 156/08 della Regione Emilia-Romagna. • Ottimizzato per alimentare la pompa di calore e ridurre drasticamente i consumi elettrici. Struttura e isolamento • Pareti esterne con muratura a cassone ad alte prestazioni, con strati di poroton, isolante termico da 10–15 cm e tamponamento esterno intonacato. • Cappotto termico altamente performante per massimizzare l’efficienza energetica. • Isolamento acustico conforme al DPCM 5/12/1997, con doppi divisori tra unità abitative e sistemi dedicati all’abbattimento del rumore. • Tetti e solai coibentati per un comfort superiore in ogni stagione. Serramenti e infissi • Infissi in PVC con vetro basso emissivo (vetrocamera 12-4-4), apertura anche a vasistas e zanzariere incluse. • Scuretti in alluminio coordinati. • Portoncino d’ingresso blindato con maniglione verticale. • Portone garage sezionale motorizzato a doppia intercapedine. Finiture interne ed esterne • Pavimenti interni in gres porcellanato 60×60 o effetto legno 90×15/20. • Rivestimenti ceramici moderni in cucina e bagni. • Porte interne in legno tamburato (finitura chiara o noce). • Balconi e portico pavimentati in gres antiscivolo. • Giardino recintato con rete plastificata e cancelli carrai motorizzati. • Illuminazione esterna con lampioncini IP65. Perché questa bifamiliare è speciale Questa abitazione rappresenta una sintesi perfetta tra funzionalità, eleganza e tecnologie moderne. Gli spazi interni sono progettati con grande attenzione alla vita quotidiana: dalla connessione diretta tra garage e zona giorno, alla suite padronale con balcone coperto, fino alla possibilità di ampliare la vivibilità esterna con un pergolato integrato al soggiorno. La dotazione tecnologica – riscaldamento a pavimento, pompa di calore, fotovoltaico da 4 kW, isolamento avanzato, infissi performanti – garantisce consumi bassissimi, massimo comfort e un’abitazione pronta per il futuro. Una casa pensata per offrire benessere, efficienza e qualità a chi cerca una soluzione moderna, indipendente e di livello superiore.
  • Riferimento:
    C124-A
  • Prezzo:
     € 430.000,00
  • Contratto:
    Vendita
  • Superficie:
    178 mq
  • Tipologia:
    villa
  • Numero vani:
    4
  • Comune:
    Castelfranco Emilia
  • Anno:
    2026
  • Piano:
    0
  • Cantina:
    no
  • Garage:
    1
  • Riscaldamento:
    autonomo
  • Balcone:
    1
  • Terrazzo:
    1
  • Giardino: